The Sport Hall in Velké Meziříčí
design: 2024, project: 2025
Based on the successful implementation of the sports hall in Kuřim, we were invited by the city of Velké Meziříčí to participate in the tender for the selection of an architect and general designer for the newly considered sports hall. To our great joy, we emerged victorious from the tender and began to cooperate with the city on the design and projection. Construction begins in January 2026.
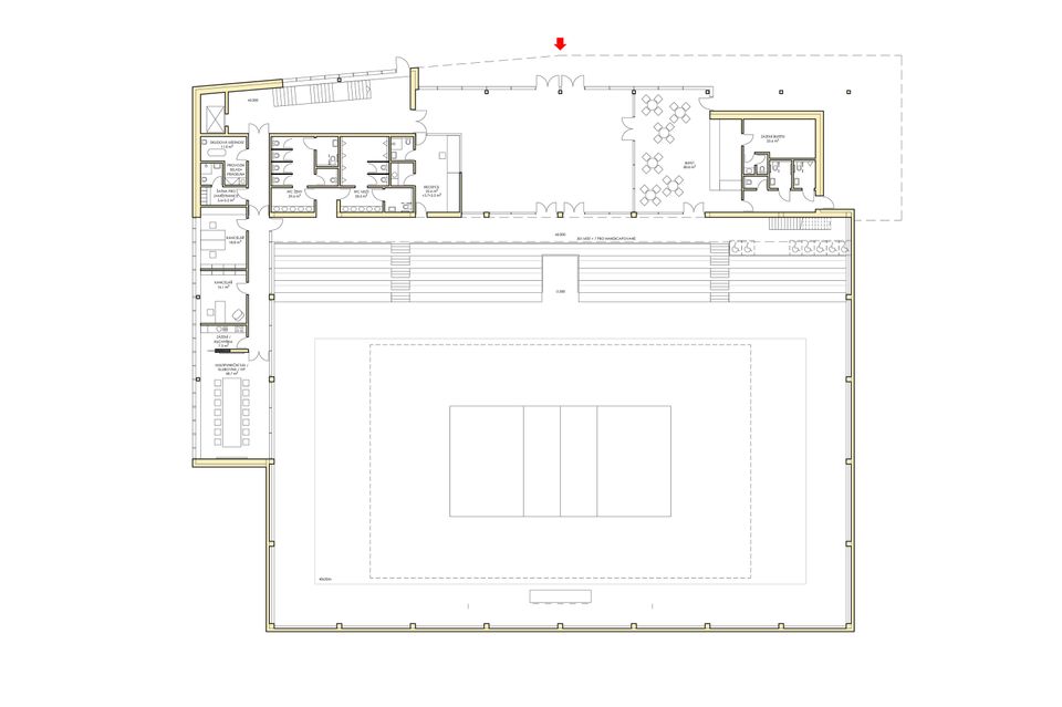
A beautiful park-like plot of land on the southern slope above the city was selected for the sports hall. We therefore placed the hall on the plot in such a way that the northern part is partially embedded in the terrain and the southern side is placed above the terrain. The hall is entered from the north into a spacious hall and the playing field is located slightly lower, with the height difference between them naturally balanced by the tribune. The entrance hall and the playing field are therefore adjacent to the surrounding terrain.
The architecture of the hall is based on its function, it is unpretentious but elegant. It is outwardly presented with its white facades, which contrast with the surrounding greenery. Large areas of the hall facades are enlivened by climbing plants on a support network, the shape of which deliberately evokes the hilly landscape of the Vysočina.
From a structural point of view, it is a prefabricated reinforced concrete skeleton. The material of the hall's background will be monolithic reinforced concrete. The perimeter shell of the hall will be made of self-supporting lightweight sandwich panels.
The interior color scheme uses the natural colors of the materials used - gray-white concrete of the supporting structure, the white surface of the facade panels and auxiliary steel structures, and the wood of the benches in the stands.












